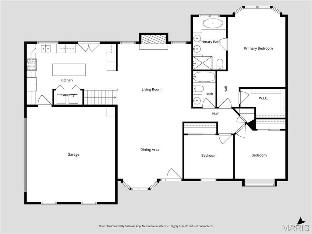
Welcome to 804 Shady Ridge Ct in the heart of Mehlville! Nestled on a corner lot in a quiet cul-de-sac within a well-established subdivision, this 3 bed, 3 bath home offers a great blend of space, functionality, and opportunity. Inside, you’ll find hardwood floors in the dining room and all bedrooms, with ceramic tile throughout the living room, kitchen, and main floor baths. The living room features vaulted ceilings and a cozy brick fireplace, creating a warm and inviting space to gather. The kitchen offers an island with plenty of cabinet space, making it both functional and ideal for everyday living or entertaining. The primary suite includes a walk-in closet and a private full bath with a soaking tub and separate shower. All appliances stay, making this home move-in ready from day one. Downstairs, the large unfinished basement offers endless potential and already includes a full bath and wash sink—perfect for storage, a workshop, or future finishing. Additional highlights include a newer roof, whole house generator, fenced backyard, and a side-entry 2-car garage. This home has that classic charm with room to make it your own over time. Located in the Mehlville School District and in a desirable subdivision setting, this one is truly a gem! Showings begin Thursday at the open house from 5–7 PM—don’t miss your chance to see it in person!

Disclaimer: Listings courtesy of MARIS MLS as distributed by MLS GRID. The information on this site is provided exclusively for consumers personal non-commercial use and may not be used for any purpose other than to identify prospective properties consumers may be interested in purchasing. The information contained herein is deemed reliable but is not guaranteed by MLS GRID, MARIS, MORE, REALTORS® or the owner of this website. The listing information shown herein is based on information submitted to the MLS GRID as of 04/02/2026 07:13 AM. All data is obtained from various sources and may not have been verified by MLS GRID, MARIS, MORE, REALTORS® or the owner of this website. Supplied Open House Information is subject to change without notice. All information should be independently reviewed and verified for accuracy. Properties may or may not be listed by the office/agent presenting the information. DMCA Notice
The Digital Millennium Copyright Act of 1998, 17 U.S.C. § 512 (the "DMCA") provides recourse for copyright owners who believe that material appearing on the Internet infringes their rights under U.S. copyright law. If you believe in good faith that any content or material made available in connection with our website or services infringes your copyright, you (or your agent) may send us a notice requesting that the content or material be removed, or access to it blocked. Notices must be sent in writing by email to DMCAnotice@MLSGrid.com AND DMCAnotice@STLRE.com/
The DMCA requires that your notice of alleged copyright infringement include the following information:
![]()
This site is owned and operated by Guerrilla Brokers®, LLC
Please wait while document is loading...
We look forward to helping you. Please add any additional comments below and we will be in touch with you shortly.
By clicking continue or signup, you agree to our Term of Use & Privacy Policy