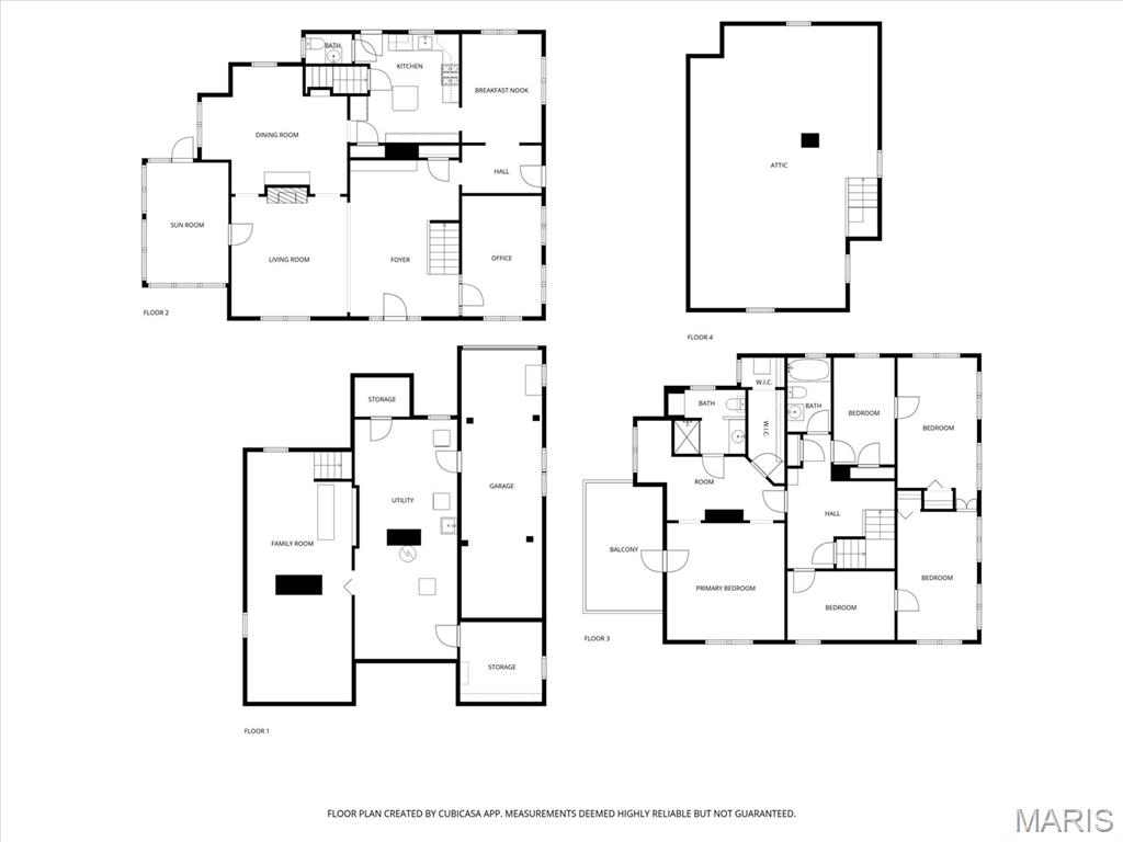
This Certified Ferguson Century Home, built in 1892 by Dr. Case for his beloved daughter, Sallie George Case, has history oozing out of every nook and built-in. When you walk in the door, you can feel the love that was put into every restoration and improvement. No woodwork has been harmed in this gleaming home. A gas log fireplace warms the cozy living room. Spring weather on the screened-in sun porches brings a true feel of luxury to your days. The enormous dining room can host your significant events with ease. Featuring a large walk-in pantry, ample cabinets, and a center island, the kitchen also provides a center island. Don't miss the main floor half bath and the breakfast room. An office is tucked discreetly by the spiraling staircase to the upper floors. Each of the three large bedrooms has an attached sitting room, which could be used as an additional bedroom, resulting in a total of five bedrooms. The primary bedroom features an en suite bathroom, a luxurious walk-in closet, and a private balcony, unheard of in this age of home. An additional full bath is easily accessible to all the ancillary bedrooms. The attic, though unfinished, features a large closet and extensive space for storage. Don't overlook the lower-level family room, which features a bar built from some of the home's old doors and windows during upgrades. Off the laundry room, you will find access to a work area, additional storage, and a tuck-under garage. There is ample parking in the enormous driveway and in the enclosed, detached, two-car covered carport. Walk in the footsteps of Ulysses S Grant, who, as a young man, was tasked with harvesting wood from the property for visitors and residents of Ferguson. Experience the beauty and community that Ferguson has to offer. Many restaurants are within walking distance. The farmers' market will begin soon, where you can support local urban farms and beekeepers. Concerts and celebrations are commonplace in this close-knit community. You won't regret it!

Disclaimer: Listings courtesy of MARIS MLS as distributed by MLS GRID. The information on this site is provided exclusively for consumers personal non-commercial use and may not be used for any purpose other than to identify prospective properties consumers may be interested in purchasing. The information contained herein is deemed reliable but is not guaranteed by MLS GRID, MARIS, MORE, REALTORS® or the owner of this website. The listing information shown herein is based on information submitted to the MLS GRID as of 04/01/2026 06:36 AM. All data is obtained from various sources and may not have been verified by MLS GRID, MARIS, MORE, REALTORS® or the owner of this website. Supplied Open House Information is subject to change without notice. All information should be independently reviewed and verified for accuracy. Properties may or may not be listed by the office/agent presenting the information. DMCA Notice
The Digital Millennium Copyright Act of 1998, 17 U.S.C. § 512 (the "DMCA") provides recourse for copyright owners who believe that material appearing on the Internet infringes their rights under U.S. copyright law. If you believe in good faith that any content or material made available in connection with our website or services infringes your copyright, you (or your agent) may send us a notice requesting that the content or material be removed, or access to it blocked. Notices must be sent in writing by email to DMCAnotice@MLSGrid.com AND DMCAnotice@STLRE.com/
The DMCA requires that your notice of alleged copyright infringement include the following information:
![]()
This site is owned and operated by Guerrilla Brokers®, LLC
Please wait while document is loading...
We look forward to helping you. Please add any additional comments below and we will be in touch with you shortly.
By clicking continue or signup, you agree to our Term of Use & Privacy Policy