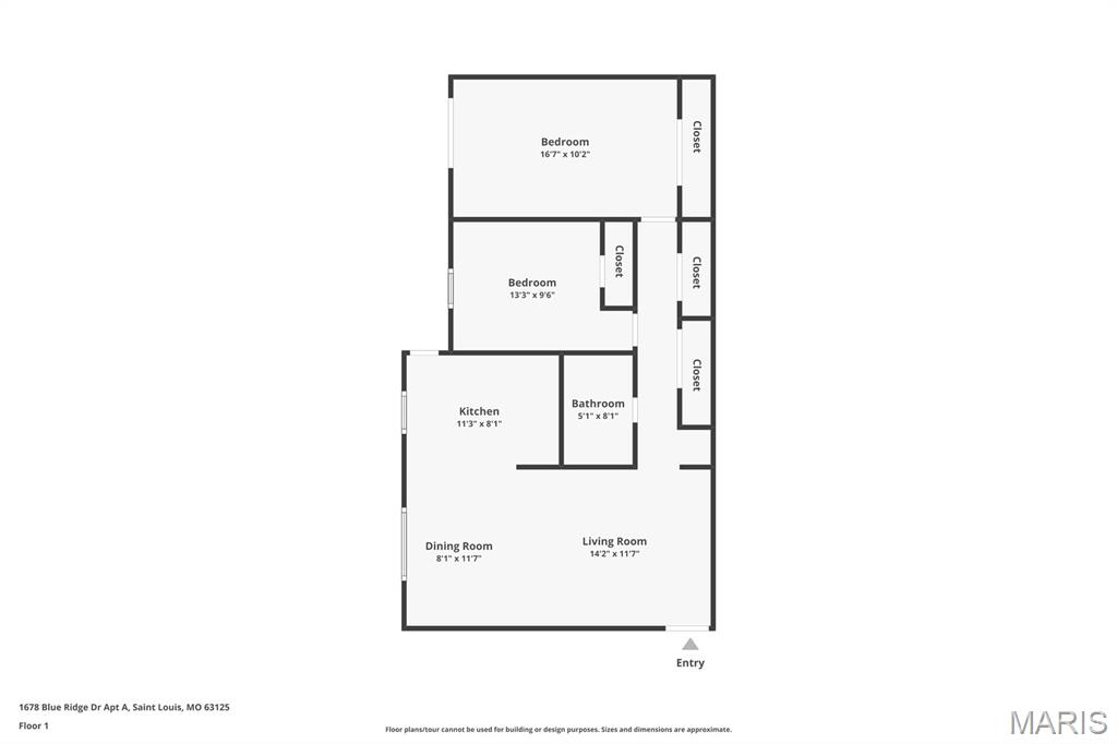
Welcome to 1678 Blue Ridge Dr, Unit A—an updated 2-bedroom, 1-bath condo in the heart of South County. Step inside to find a bright, open living space with modern updates throughout, making move-in day easy. The kitchen offers plenty of cabinet storage and flows right into the living/dining area for everyday convenience. Both bedrooms are well-sized with good closet space, and includes a full bath directly across from the massive hall storage closets! Out back, enjoy your own private patio—perfect for morning coffee, container gardening, or winding down after the day. The community setting keeps maintenance light while giving you the benefit of location: easy access to Hwy 55/270, nearby parks, shopping, and restaurants. Whether you’re looking for your first place, downsizing, or investing, this home is a smart fit.

Disclaimer: Listings courtesy of MARIS MLS as distributed by MLS GRID. The information on this site is provided exclusively for consumers personal non-commercial use and may not be used for any purpose other than to identify prospective properties consumers may be interested in purchasing. The information contained herein is deemed reliable but is not guaranteed by MLS GRID, MARIS, MORE, REALTORS® or the owner of this website. The listing information shown herein is based on information submitted to the MLS GRID as of 04/01/2026 06:39 AM. All data is obtained from various sources and may not have been verified by MLS GRID, MARIS, MORE, REALTORS® or the owner of this website. Supplied Open House Information is subject to change without notice. All information should be independently reviewed and verified for accuracy. Properties may or may not be listed by the office/agent presenting the information. DMCA Notice
The Digital Millennium Copyright Act of 1998, 17 U.S.C. § 512 (the "DMCA") provides recourse for copyright owners who believe that material appearing on the Internet infringes their rights under U.S. copyright law. If you believe in good faith that any content or material made available in connection with our website or services infringes your copyright, you (or your agent) may send us a notice requesting that the content or material be removed, or access to it blocked. Notices must be sent in writing by email to DMCAnotice@MLSGrid.com AND DMCAnotice@STLRE.com/
The DMCA requires that your notice of alleged copyright infringement include the following information:
![]()
This site is owned and operated by Guerrilla Brokers®, LLC
Please wait while document is loading...
We look forward to helping you. Please add any additional comments below and we will be in touch with you shortly.
By clicking continue or signup, you agree to our Term of Use & Privacy Policy