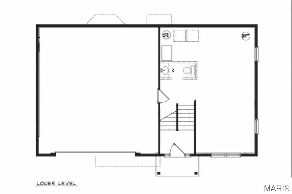
Under Construction- This astonishing modern take on a split foyer will feature 3 bedrooms and 2 full bathrooms. The foundation is poured, house is framed, and roof is on! Just a few months until completion, come add your finishing touches! Yes you read that correctly get into a new construction home without the 5-6 month waiting time! Board and Batten siding across the entire front of the home. Over 1,250 square feet on the upper level. The primary bedroom will feature a walk-in closet as well as a on suite primary bathroom. The lower level is to be unfinished with 500+ square feet of additional living space potential. 1/2 bath to be roughed in by the builder. Builder is willing to make adjustments to build finishes/ add ons depending on the stage of the build the buyer enters into contract in. No completed areas of the home will be re-finished to buyers desired trim level. Walk outdoors from the garage. Deck will be added off the back of the home. Photos are a rough idea of the finished product. Subject to change depending on elevation of the lot.

Disclaimer: Listings courtesy of MARIS MLS as distributed by MLS GRID. The information on this site is provided exclusively for consumers personal non-commercial use and may not be used for any purpose other than to identify prospective properties consumers may be interested in purchasing. The information contained herein is deemed reliable but is not guaranteed by MLS GRID, MARIS, MORE, REALTORS® or the owner of this website. The listing information shown herein is based on information submitted to the MLS GRID as of 04/01/2026 06:40 AM. All data is obtained from various sources and may not have been verified by MLS GRID, MARIS, MORE, REALTORS® or the owner of this website. Supplied Open House Information is subject to change without notice. All information should be independently reviewed and verified for accuracy. Properties may or may not be listed by the office/agent presenting the information. DMCA Notice
The Digital Millennium Copyright Act of 1998, 17 U.S.C. § 512 (the "DMCA") provides recourse for copyright owners who believe that material appearing on the Internet infringes their rights under U.S. copyright law. If you believe in good faith that any content or material made available in connection with our website or services infringes your copyright, you (or your agent) may send us a notice requesting that the content or material be removed, or access to it blocked. Notices must be sent in writing by email to DMCAnotice@MLSGrid.com AND DMCAnotice@STLRE.com/
The DMCA requires that your notice of alleged copyright infringement include the following information:
![]()
This site is owned and operated by Guerrilla Brokers®, LLC
Please wait while document is loading...
We look forward to helping you. Please add any additional comments below and we will be in touch with you shortly.
By clicking continue or signup, you agree to our Term of Use & Privacy Policy